Eltryckeslås SL620 komplett

Safetron Art.nr: 35000080 Lev.art.nr:
35000080
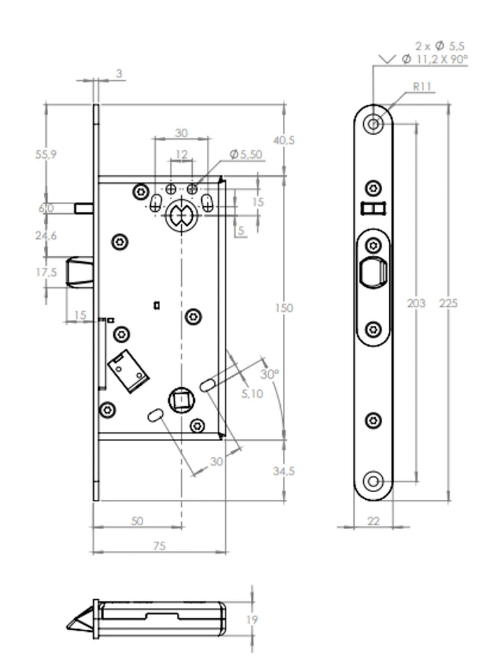
Måttskiss SL620 - Classic
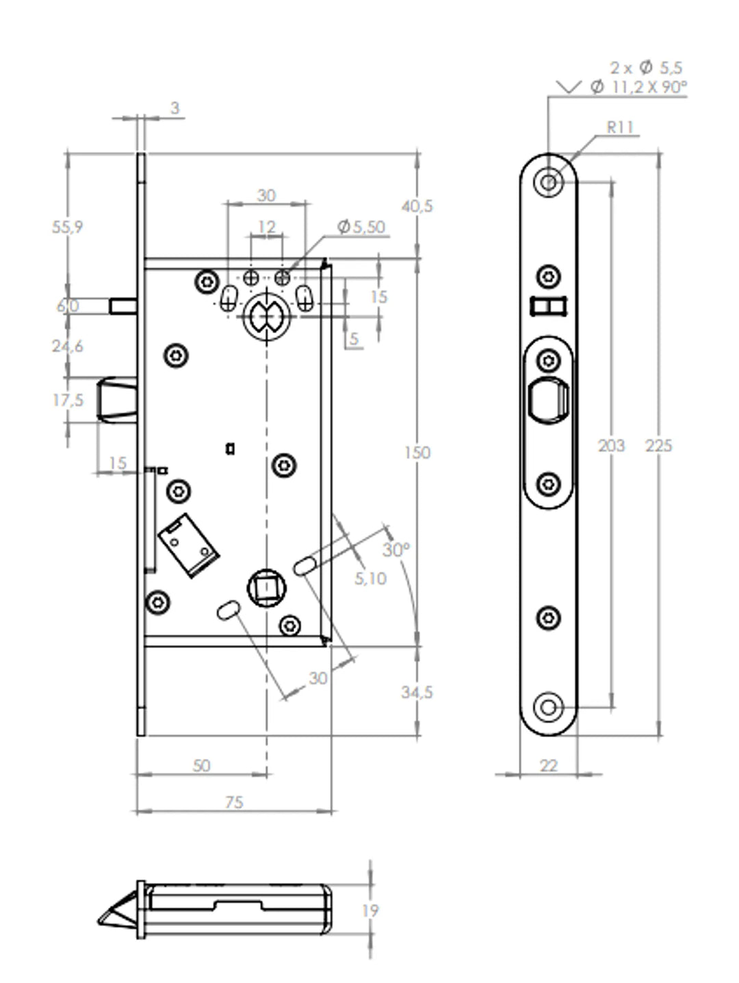
Måttskiss SL620- Modern
SL620
SL 620

Eltryckeslås SL620 komplett

Safetron Art.nr: 35000080 Lev.art.nr:
SAFETRON SL620 är nästa generationens multifunktionella eltryckeslås med split funktion och patenterad hybridteknologi. Typiska användningsområden är intern låsning av högfrekventa dörrar i affärsbyggnader, sjukhus, skolor, industrier samt flerfamiljsbostäder där hög driftsäkerhet är nödvändigt.

Låset har fyra funktionsläge. Funtkonsväljaren har fyra bestämda lägen som man enkelt med hjälp av en skruvmejsel klickar sig fram igenom. Video: Vändning av split SL620

  • Byggläge där båda tryckena är mekaniskt påkopplade. Detta läge används under byggtid när låsen inte är driftsatta.
  • Split, trycket på ena sidan låset är alltid mekaniskt upplåst och kan därför alltid öppnas. Vilken sida är justerbart via funktionsväljaren.
  • Låst, ‘LOCKED’ indikerar säkerhetsläget (annars kallad enkel funktion) där båda tryckena är låsta och elektroniskt kontrollerade vilket innebär att passagekontroll krävs från båda sidor. Detta är ett sätt att ytterligare förstärka säkerheten och övervakningen.
Egenskaper:
  • Justerbar kolvplacering mellan ASSA connect och classic
  • Split funktion, mekanisk insida
  • Enkel funktion, elektrisk aktivering båda sidor
  • Enkelt omställbar höger eller vänster
  • Brandgodkänd: 120 min [E/EI 120]
  • Dorndjup 50 mm
  • Nödutrymning enligt SS-EN 179:2008 med nödbeslag 793 & 794
  • Godkänd med Ställverksregel typ T
  • Rättvänd funktion: SL620
  • Omvänd funktion: SL621
  • Tryckesrörelseindikering
  • Förreglingsindikering
  • Dörrstatusindikering vid användande av magnet i slutbleck
  • Vred/cylinder indikering
  • Fallutsprång 14 mm
  • Produkten finns bedömd hos Byggvarubedömmingen
Teknisk data:
  • Spänning: 12-24 VDC (-10%/+15%)
  • Strömförbrukning
  • 12 VDC: 70mA, 0mA i vila
  • 24 VDC: 40mA, 0mA i vila
  • Arbetstemperatur -20°C till +40°C

Levereras komplett med anslutningskabel och karmöverföring.

Ytbehandling: Rostfritt

Senaste besökta produkter