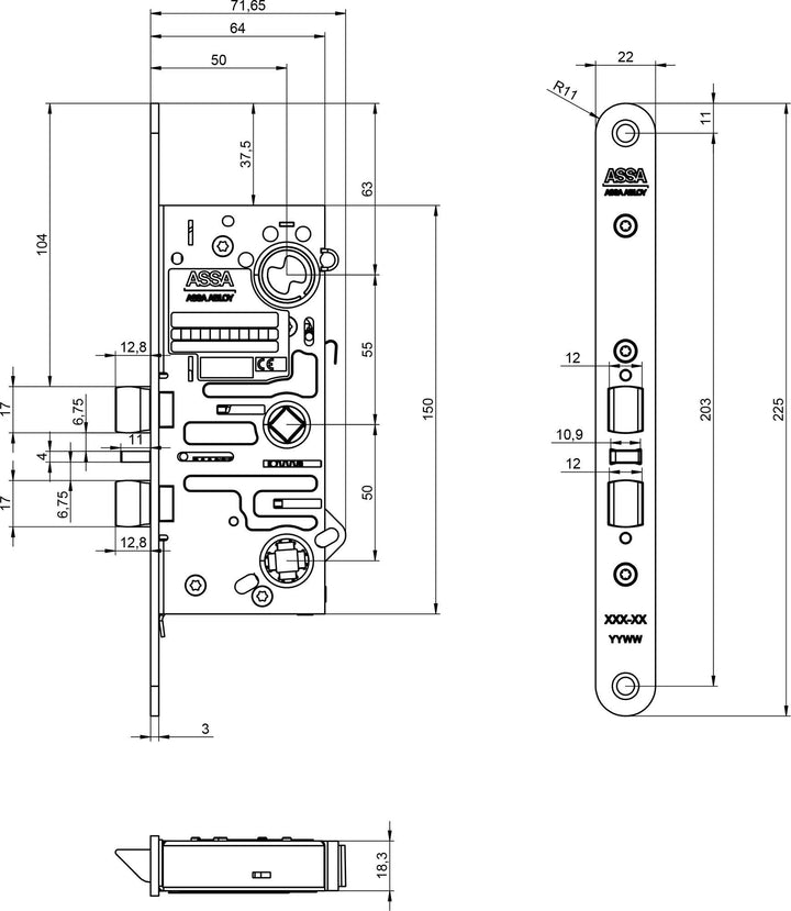
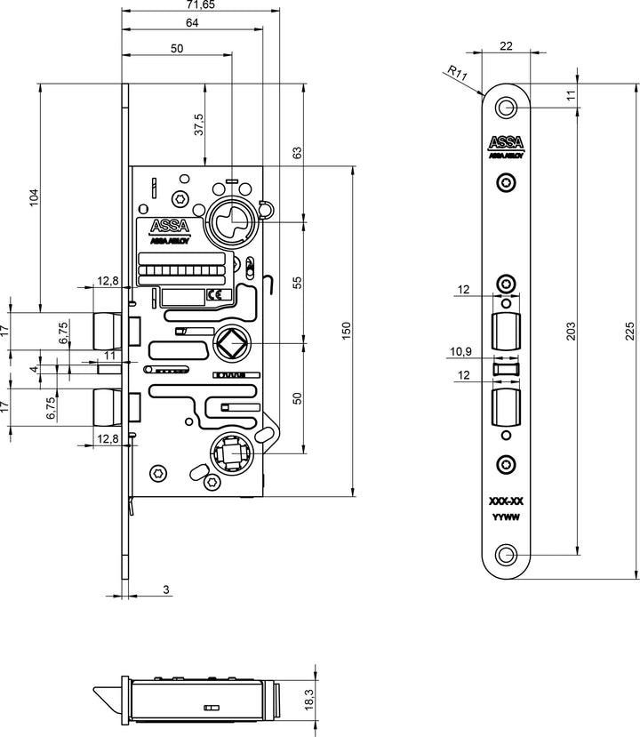
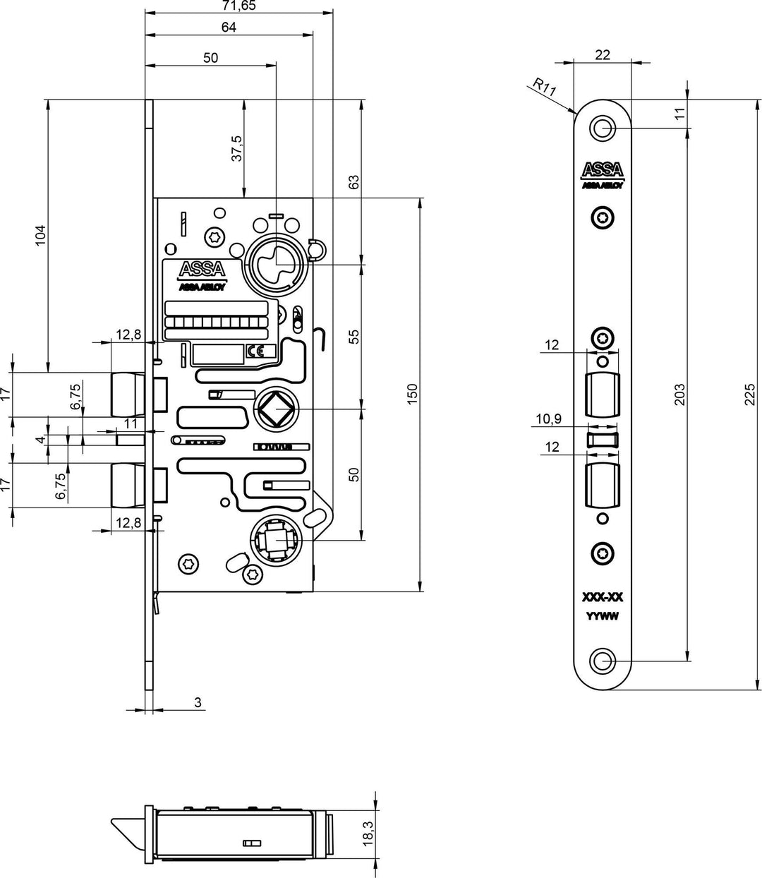
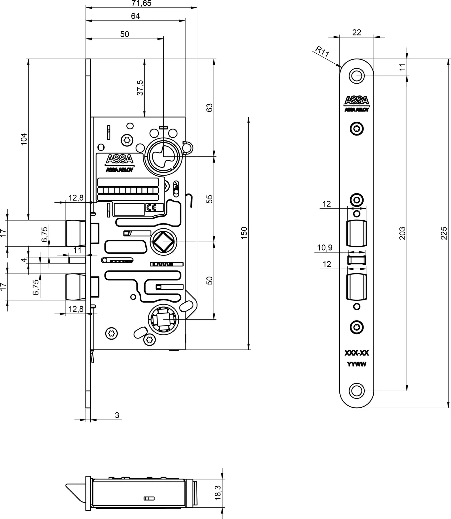
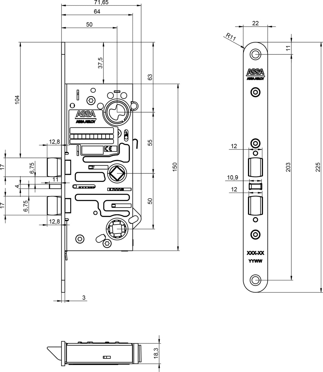
Låshus 721-50 RF hö

Assa Abloy Art.nr: 10173335 Lev.art.nr: 357709163031
ASSA-ABLOY-lashus-721-50-Hoger---357709-163-031
Låshus 722-50 179 - Måttskiss 1

Låshus 721-50 RF hö

Assa Abloy Art.nr: 10173335 Lev.art.nr: 357709163031
Låshus 721-50 i rostfritt för nödutrymningsbeslag 179A är ett dubbelfallås som är avsett för slagdörrar i utrymningsvägar där särskilda krav på panikutrymning ej föreligger. Låset öppnas med ett handgrepp, vilket innebär en säker utrymning.

  • Låset finns i dorndjupsutförande 35 / 50 / 70 mm.
  • Kan få i mikroutförande MG och MM för indikering när utrymningshandtaget används och indikering förreglad cylinderfall. 
  • Certifierat enligt SS-EN 12209. 
  • Låshus 721 i kombination med nödutrymningsbeslag 179A/179A-2, 179F är certifierade enligt SS-EN 179.
  • Låshus med förreglad cylinder- och tryckesfall.
  • Cylinderfall kan ställas upp med uppställningsnyckel.
  • 90° nyckelvridning.
  • Tryckesfallen ger brandigenhållning.  
  • Möjlighet till behörig passage via cylindern. 
  • Kan kombineras med elslutbleck t ex ASSAs 900-serie.
Funktion:
  • Cylinderroddare drar in cylinderfall och tryckesfall. 
  • Utrymningsroddare drar in cylinderfall och tryckesfall. 
  • Tryckesroddare drar in tryckesfall.

Ytbehandling: Förzinkad

Senaste besökta produkter