Låshus 911-50 Z 2 st L.L.

Fas

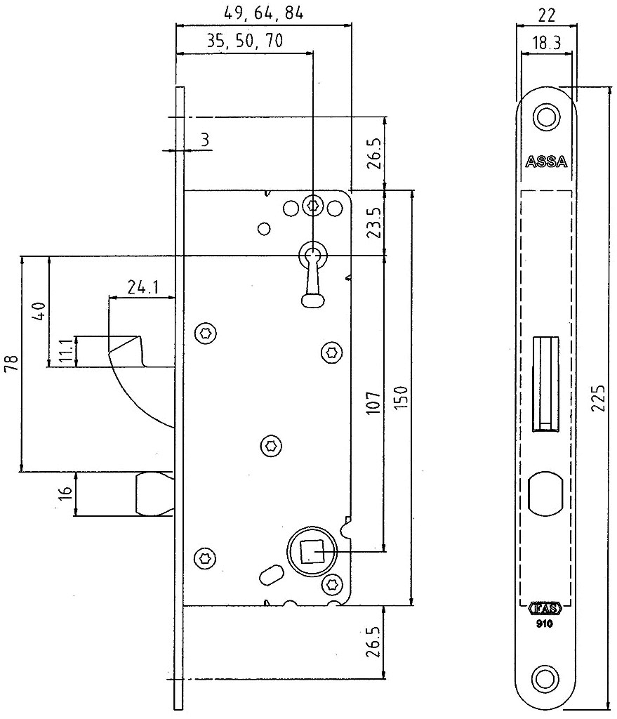
Assa Abloy Art.nr: 30080500 Lev.art.nr: 9115091+132+101
30080500
910,911-måttskiss

Låshus 911-50 Z 2 st L.L.

Fas

Assa Abloy Art.nr: 30080500 Lev.art.nr: 9115091+132+101
Låshus 911 är ett tillhållarlås med hakregel som används i privatbostäder, kommersiella byggnader, och andra miljöer där extra höga krav ställs på säkerhet. Med inmonterad mikrobrytare används låset med fördel i larm och
bevakningsanläggningar. Låset finns i dorndjupsutförande 35 / 50 mm.

Låset har 9-tillhållare i mässing och förregling sker automatiskt vid 360° nyckelvridning. Låset är certifierat enligt SSF 3522 klass 3.

Hakregeln är härdad för att försvåra genomsågning och uppbrytning och hakregeln ger ett extra starkt förband mellan dörr och karm. Hakregeln når 24 mm i utlåst läge och har dessutom en konstruktion som innebär att regeln blockerar sig själv
vid en viss brytkraft. Låset kan även fås med lika låsning till samtliga ASSA 
9-tillhållarlås.

Låset kan erhållas med inbyggd mikrobrytare och är bortasäkert, vilket innebär att nyckel kan användas från både in- och utsida. 

2 låshus levereras med 3 st nycklar  L.L 80 mm i mässing och låssköld.

Ytbehandling: Förzinkad

Senaste besökta produkter