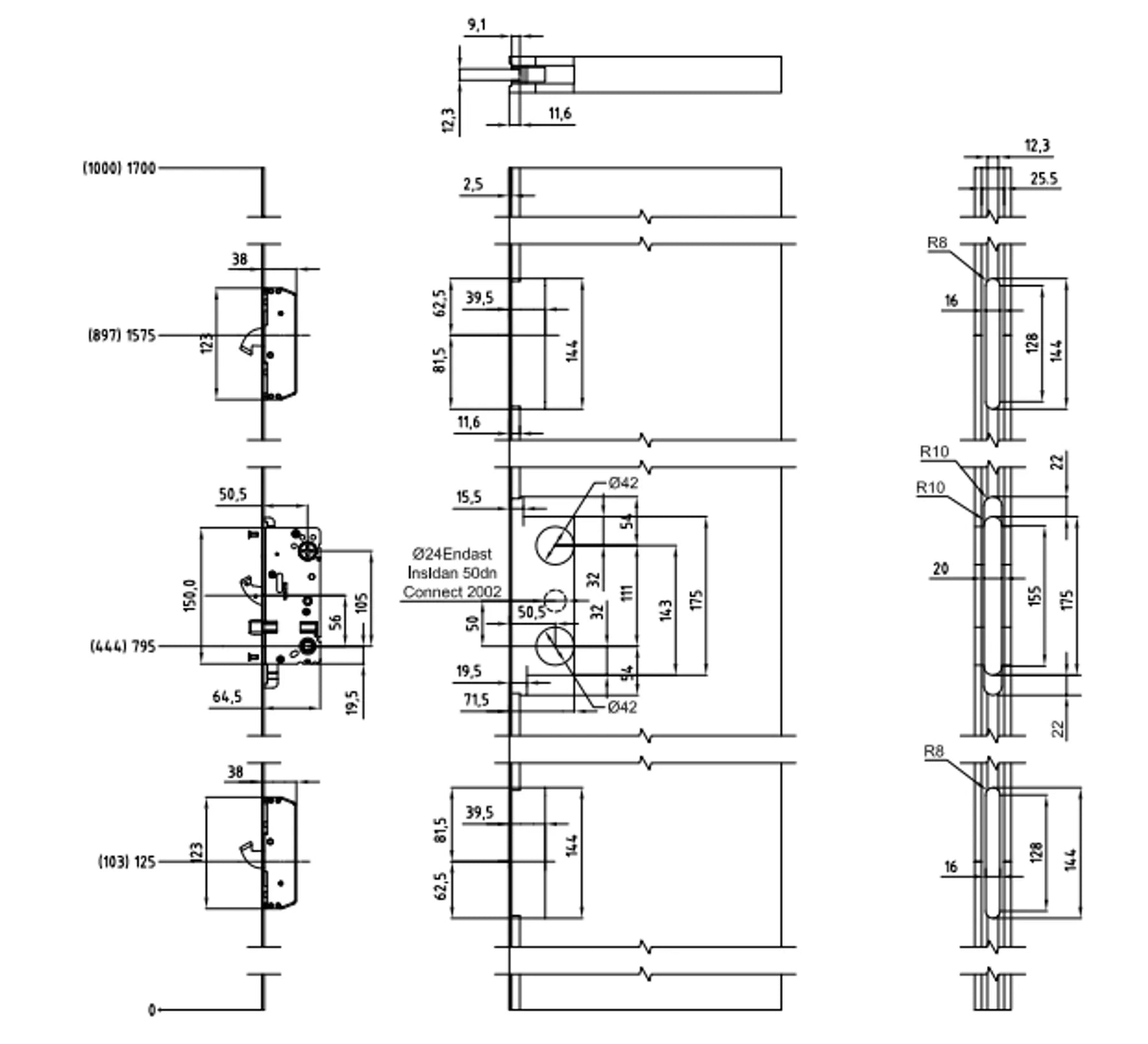
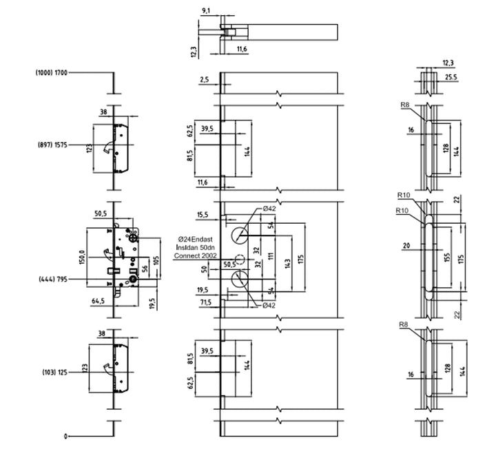
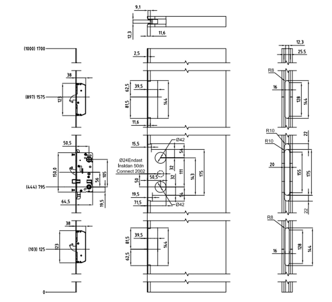
MPL 2002-50 L-1 700 mm hö Fix

Flerpunktslås

Assa Abloy Art.nr: 80270020 Lev.art.nr: M5500 002 1702
80270020
Måttskiss 2002 MPL

MPL 2002-50 L-1 700 mm hö Fix

Flerpunktslås

Assa Abloy Art.nr: 80270020 Lev.art.nr: M5500 002 1702
Connect MPL 2002-50 flerpunktslås med hakregel, 360 graders låsning och hakkolvar. Funktion för
Bortasäkert/Hemmabekvämt för säker och bekväm låsning. För entrédörr och säkerhetsdörr inom bostadssektorn i villor, lägenheter, servicehus etc, där krav på godkänd låsenhet föreligger. Avsedd för slagdörrar.

Längd: 1 700 mm.
Kantskena: 25 × 2,5 mm med rundklippta ändar.
Handtagshöjd: 795 mm.
Dorn/Låsdjup: 50/64 mm.

Höger (vändbar tryckesfall för alternativ dörrhängning). Uppfyller krav enligt Svensk Standard SS 3522, utg. 4, klass 3 TR29 och ingår i av försäkringsbolag godkänd låsenhet, i utförande med cylinder på insida och på
utsida. Centrumlås med tryckesfall, hakregel och 2 extra hakkolvar. Hakkolvarna ger kopplande förband mellan dörr och karm för ökad säkerhet. Härdade och tvångsstyrda hakreglar. Patentsökt kapslad förregling. Tryckesfall i härdat stål för brandklassade dörrar. Levereras med borrskydd.

Tillval: Extralås, inbyggd mikrobrytare, 22 mm kantskena.

För att låsa: lyft trycket för att låsa ut hakregeln och hakkolvar, vrid runt nyckeln eller vred 360 grader för att förregla låshuset.

För att låsa upp: vrid nyckeln eller vred 360 grader för att häva förreglingen och öppna dörren genom att trycka ned trycket som drar in fall, regel och hakkolvar.

Assa Connect 2002 MPL har funktionen ”Bortasäkert/hemmabekvämt” vilket innebär att när man inte är hemma spärras insidans vred så att dörren endast kan låsas upp med nyckel. När man är hemma kan vredet användas för att låsa.

Tillbehör:
Använd Assa säkerhetsslutbleck 1487, 1487 HD eller 1489 för central låsenhet och t.ex. Assa säkerhetsslutbleck 1488 HD för hakkolvar. Assa handtag med returfjäder. Vredskylt. Rund dubbelcylinder rekommenderas.

Ytbehandling: Förzinkad

Senaste besökta produkter