MPL 310-50 L-1 700 mm hö Fix

Flerpunktslås

Assa Abloy Art.nr: 80250020 Lev.art.nr: M5300 020 1702
80250020
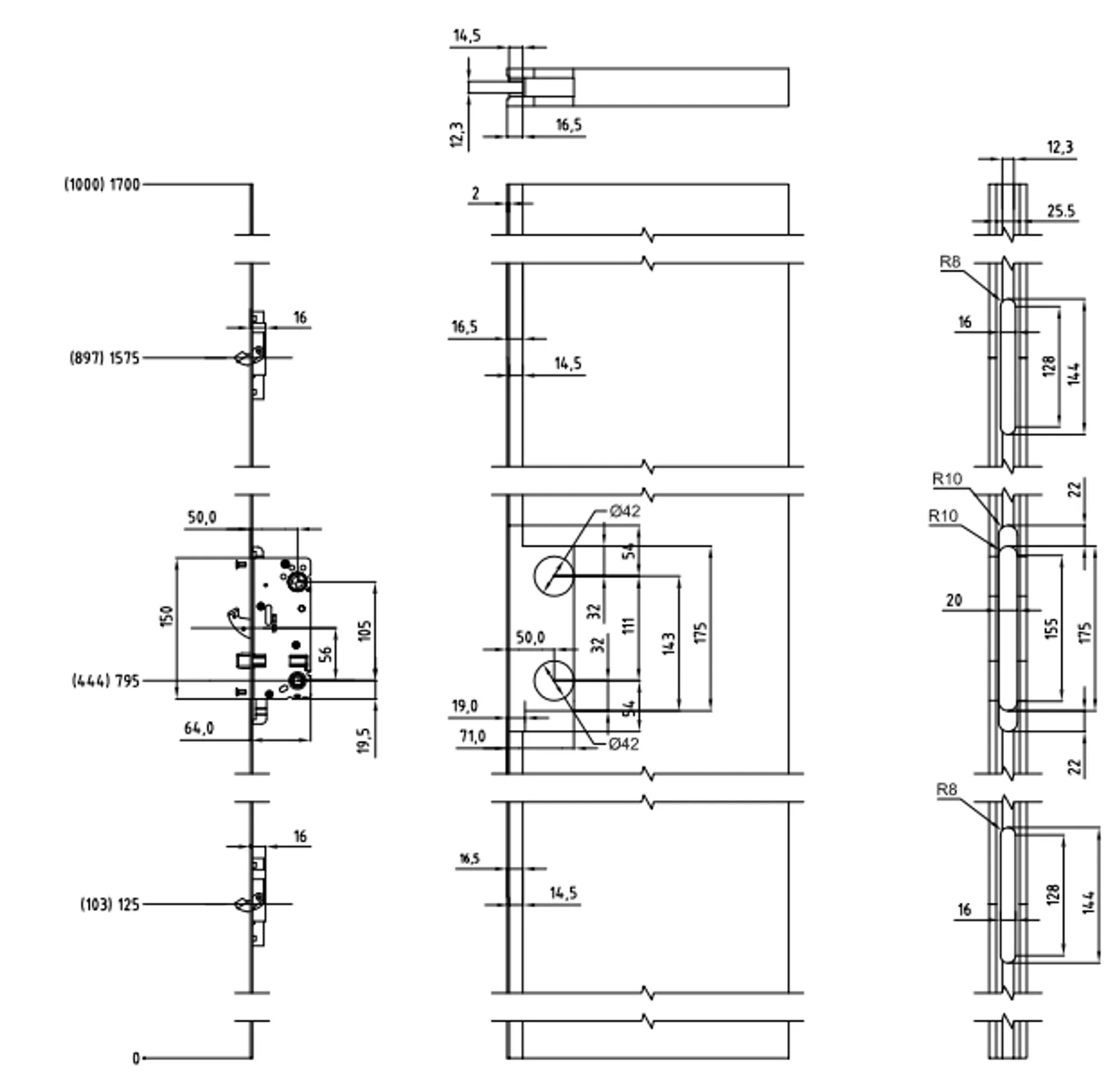
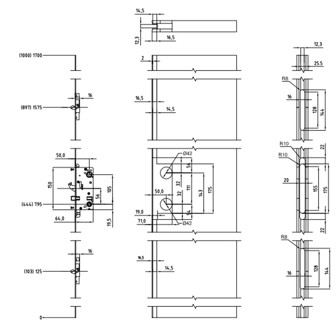
Måttskiss 310 MPL

MPL 310-50 L-1 700 mm hö Fix

Flerpunktslås

Assa Abloy Art.nr: 80250020 Lev.art.nr: M5300 020 1702
Connect MPL 310-50 flerpunktslås med hakregel, 90 graders nyckelvridning och kilkolvar. För utåtgående och inåtgående ytterdörr, fönsterdörr och smalprofil, där krav på godkänd låsenhet inte föreligger.

Längd: 1 700 mm.
Kantskena: 25 × 2 mm med rundklippta ändar.
Handtagshöjd: 795 mm.
Dorn/Låsdjup: 50/64 mm.

Höger (vändbar tryckesfall för alternativ dörrhängning). Tryckesfall, hakregel samt 2 extra kilkolvar för ökad tätning. Patentsökt kapslad förregling.
Tryckesfall i härdat stål för brandklassade dörrar.

Tillval: Extralås, inbyggd mikrobrytare.

För att låsa: lyft trycket för att låsa ut hakregeln och kilkolvarna, vrid runt nyckeln
90 grader för att förregla låshuset.

För att låsa upp: vrid nyckeln 90 grader för att häva blockeringen; och öppna
dörren genom att trycka ned trycket, vilket drar in fall, regel och kolvar.

Tillbehör:
Använd Assa säkerhetsslutbleck 1487 eller 1489 för central låsenhet och t.ex. Assa slutbleck 62-R eller 622-R för kilkolv. Assa handtag med returfjäder, vred av standardtyp, oval eller rund cylinder av standardtyp.

Ytbehandling: Förzinkad

Senaste besökta produkter