Panikregelpaket PE900 MCH

Assa Abloy Art.nr: 30174650 Lev.art.nr: PE900200000
30174650
PBE001- aktiv dörr
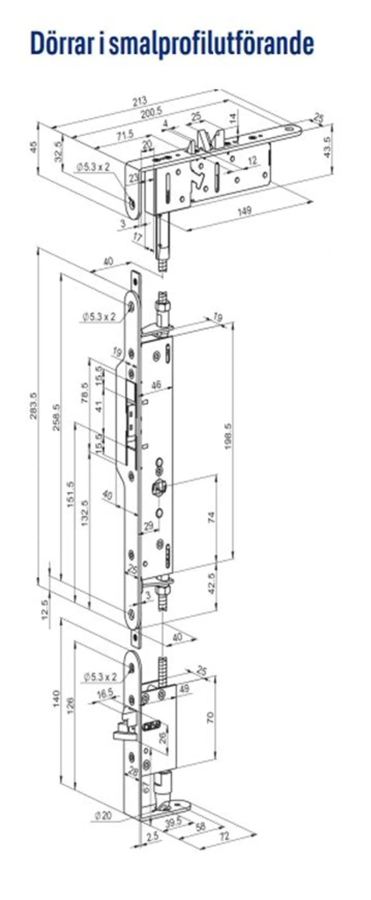
MÅTTSKISS SMALPR. PE
PE900 dörrpaket

Panikregelpaket PE900 MCH

Assa Abloy Art.nr: 30174650 Lev.art.nr: PE900200000
Panikregel PE900 (tidigare 1143:1) är en mekanisk styrd panikregel i smalprofil för PASSIV del av utåtgående pardörr. Passar mot ABLOY eltryckeslås EL480 med panikregel PBE001 (tidigare 1141) och ABLOY motorlås EL495 med panikregel PBE003 (tidigare 1143).

Rekommenderas till dörrar med utrymningskrav där risk för trängsel kan uppstå t.e.x skolor, sjukvård, sportanläggningar, teatrar mm.

Egenskaper
  • Innehåll i paket PE900: panikregel PBE003, mittenlås LE943, bottenlås LE930, topplås LE931, sammankopplande stänger
  • PE900: Infälld/mekanisk/vändbar/smalprofil
  • Mekaniskt styrd panikregel i smalprofil för utåtgående passiv del i pardörr
  • Slutblecksenhet, stänger och låsreglar monteras infällt i dörrbladet
  • Slutblecksenhet kräver min 46 mm profilbredd
  • Certifierad enligt SS-EN 1125
  • Max karminnermått 1320 mm
  • Tryckstången kan enkelt kapas för att passa aktuellt dörrmått
  • Tryckstång tillverkas av mattborstat rostfritt stål och kåpor i mattkrom
  • Levereras i vändbart höger- eller vänsterutförande
  • Teknisk specifikation: se även nedladdningsbar broschyr
  • Dorndjup: 29 mm
  • Funktion: Mekanisk
  • Medföljande stolpe till mittenlås i paket: 815766
  • Medföljande regel till bottenlås i paket: 813366 & 928136
Funktion
  • Mekanisk utrymning
  • Produkt för mekanisk öppning av passivt dörrblad
  • Passivt dörrblad kan alltid öppnas med nödhandtag eller panikregel. Det passiva dörrbladet är ej kompatibelt med installation av dörrautomatik.
  • Topplås: Automatlåsande tulpankolv, mekanisk funktion
  • Mittenlås: Frigör låsfallet på aktiv dörr, låser upp topplås och bottenlås
  • Bottenlås: Låser dörrens undersida genom att automatregla ner i golv eller tröskel

Ytbehandling: Mattkrom

Senaste besökta produkter